栏目分类
发布日期:2025-12-17 21:47 点击次数:137
很多人第一反应是:占地就这么点,房间堆得这么多,会不会拥挤、浪费、不好住?
真正有意思的是,这个方案把“面子”和“里子”都照顾到了——该有的堂屋仪式感保留,现代家庭的隐私和舒适也没丢。
如果你正在纠结自建房到底怎么在有限面积里把日常、待客、三代同住都安排好,这套思路值得细看。

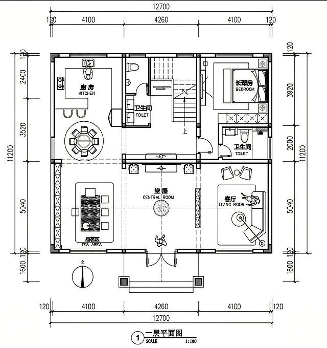
进门就是堂屋,两侧分开茶室和会客厅,餐厨放在西北角,东北角留给老人房还带独卫,楼梯下把卫生间也用上了。
这几个点背后都是生活场景的配合。
堂屋解决的是场面:逢年过节、红白喜事、乡里邻里来人,正门进、正中坐,礼数到位。
茶室和会客厅分列两侧,一个轻聊,一个正谈,动线互不打扰;家里来人多,也不会把餐厨和卧室打得“鸡飞狗跳”。
餐厅和厨房靠一侧,油烟、采购、上菜都在同一条线,做饭的人不必穿越全屋;老人房安在一层东北角,既安静又不用爬楼,带独卫更省夜里来回跑。
楼梯下放卫生间,看着是挤,其实是把零碎空间变成刚需位:客人来不用进私密区,孩子玩耍脏了手随手就能冲洗。
担心压抑?
只要保证头顶不碰、光线和排风到位,这个小卫生间是“真香”。
二层做得很“懂人”。
四个卧室卡在四个角,起居室在中间连着阳台。
角落卧室安静、好布置,家里孩子、亲戚来了,谁住哪不打架。
中间起居室是家庭的“半公区”,不上升到堂屋那种正式,但足够坐在一起聊聊天、看个剧、晒太阳,连着阳台更自在。
阳台不是摆设,晾晒、养花、吹风都在这儿,客厅外延了,家人聚拢的机会自然变多。
卫生间不必每个房间都套,但这套总共做了6个,密度够用,夜里抢卫生间的尴尬基本不会发生。

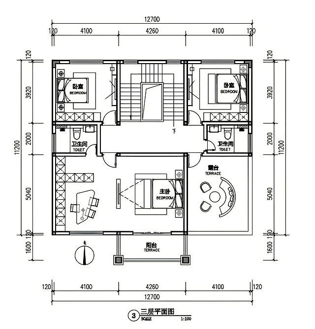
三层留了“主人的世界”。
有3间卧室,其中南向主卧做豪华套房,独立卫生间、衣帽间/书房、独立阳台,住着是个完整的小宇宙。
白天光线好,办公、阅读都能静下来;衣物和杂物有自己的空间不堆在床边,起居秩序更稳定。
外立面还做了退台,形成休闲露台,不只是好看——家里需要一个开放、自由、带点仪式的小场所,喝咖啡、做瑜伽、孩子涂涂画画,都能用起来。
退台带来的层次,会让整栋房子看着更有“气质”,不再是一个方盒子。
组合起来看,这套布局有几个硬核优势。
第一,动静分区明确。
进门社交区在一层,睡觉区从二层开始分散到角落,夜里不互相影响。
第二,隐私和便利同步解决。
老人房带独卫、主卧带套间,楼梯下的公卫把客区需求也补齐,“接待”和“过日子”互不拖累。
第三,人情场景都能接住。
堂屋扛仪式感,茶室和会客厅扛日常社交,二层起居室扛家庭互动,露台扛轻松休闲——不同场景有不同“舞台”,一家人不会抢地盘。
第四,空间密度合理。
占地约140平左右,三层加起来差不多420平上下,8房6卫分布其间,不是拼命塞房间,而是让每一层都有自己的功能重心,使用起来“各就各位”。

很多人对堂屋有争议,觉得过时、占地。
现实是,乡里的人情往来还在,家里大事小事都需要一个不那么私密、又像样的场面。
堂屋承担的就是这种“公共性”,但不代表把生活拖回老式布局。
这套做法是在堂屋两侧放了现代感更强的茶室与会客厅,场面需要的仪式感还在,日常谈事的舒适度也有,面子和里子做到了两全。
如果你家接待不多,茶室可以升级成书房或兴趣室,功能可变,空间不浪费。
有人担心8间卧室是不是太多。
关键在“可转换”。
留出的房间不仅是睡觉用,也可以变身为影音室、健身房、亲子玩乐间或独立工作室。
农村自建房常见的情况是:孩子们节假日返乡,亲戚朋友来住,房间空出来就能接得住,平时则按爱好去用。
与其到了春节在沙发上拼地铺,不如平时多一间备用房,年节不慌乱。
卫生间数量上来了,打理是不是很累?
这是个实际问题。
解决方案不复杂:材质耐脏好清洁,台上盆少缝隙、墙地面选耐水渍的砖,做干湿分区,配好排风和地漏。
再搭配分区清洁的习惯,卫生间多反而用得更干净。

有老人或小孩的家庭,会明显感到这个“成本”是值得的。
露台看着美,大家也会问:晒雨、漏水怎么办?
露台高颜值的前提是防水到位、排水畅通。
坡度和排水口安排好,尽量减少大面积木质铺装,增加可移动的遮阳和绿植,不搞固定大棚那种高风险结构。
这样既能保留露台的轻盈,也减少维护成本。
阳台同理,别把它变成杂物间,保持通风采光,实用和美感就能兼得。
细节里有不少小心思。
楼梯下的卫生间靠“够用”原则,不求大但求顺手;老人房在一层东北角,更安静也更安全;厨房和餐厅同侧,做饭不穿堂屋;二层的起居室连阳台,让全家在一个不威严又不凌乱的地方自然聚拢。
这些看似普通的安排,都是围绕“怎么好住”去做选择,而不是为了图纸好看。
这套方案适合谁?
三代同住、走动频繁、节假日人多的家庭,或者日常社交需求大、喜欢有露台和独立主卧的人群。
不太适合极简人口结构、预算极紧且不愿做后期维护的家庭。
如果你的需求更偏静、有明确的少人居住场景,房间数量完全可以按这套框架做减法,保留堂屋或用茶室替代都能成立。
房子是生活的容器,布局就是把你的习惯翻译成空间的语言。
这种12.7×11.2米的三层设计,不是拼命堆功能,而是用“堂屋+分区社交”“套房+公共起居”“露台+层次立面”去把一家人的关系安排得井井有条。
选方案别只看参数,更要看它是否把你的真实场景安排明白。
面子有处安放,里子有处安住,在有限占地里做出合适的生活,这才是自建的价值。
